RELOCATION
Would you like to reproduce a Kominka in your country?
To purchase and utilize a Kominka as a residence or vacation home, it is necessary to visit Japan, which can be a significant hurdle for overseas customers. To cater to such customers, our company offers a service for relocating old traditional houses.By dismantling a Kominka in Japan and creating architectural plans, we can transport the house to your country and reconstruct it on-site.
Currently, there are very few companies in Japan engaged in the repeated and ongoing business of relocating old houses overseas. This is due to the numerous high hurdles that typical real estate companies cannot overcome in the overseas relocation business.
To ensure the success of our overseas relocation business, we have established a system to overcome these hurdles. If you are considering relocating a Kominka overseas, please feel free to contact us.
Our company's undertaking: relocating Kominka overseas.
After relocation, the old farmhouse can be faithfully reproduced to the traditional Japanese architectural style as much as possible, or it can be renovated to maintain the appearance of a Kominka while incorporating modern comforts, offering customization according to your preferences.
*Tea room: A small house used in the Japanese tea ceremony culture "Sadou." It is of a size similar to a small hut and can be built modestly in a corner of the garden, unlike relocating the entire house.
2. Dismantle the house and create architectural plans for reconstruction.
3. Traditional Japanese construction craftsmen repair damaged materials such as wood.
4. Assemble the components to ensure smooth relocation, conducting a trial assembly if necessary.
5. Export the components, including wood, to your country.
6. Receiving, local transportation, and on-site construction will be handled by cooperating companies in your country.

If you are considering relocation, please feel free to contact our company for further assistance.
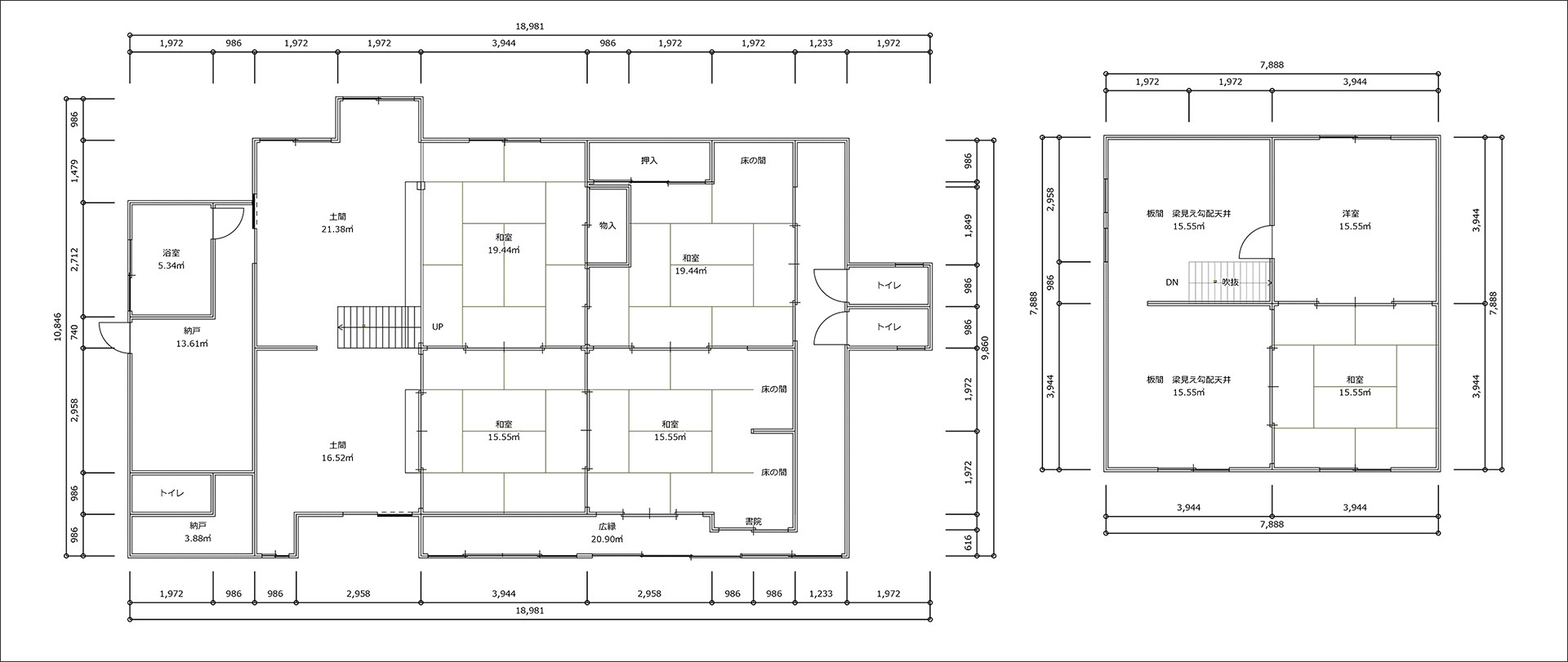
A Kominka currently available for relocation overseas
《 Overview of this Kominka 》Year Built: Unknown (Estimated to be over 100 years), Building Area: 1st floor: 132.23 sqm, 2nd floor: 37.02 sqm《 History of this Kominka 》Located in Yosa District, Kyoto Prefecture, this is an estimated 100-year-old house that was previously used for weaving business. Remnants of weaving machines were observed inside.
《 Relocation Quotation 》
Overseas Relocation Price: 28,420,000 yen
※The following is an estimated cost up to January 2024 for the Bay Area on the West Coast of the United States. The cost includes only the expenses for lumber, excluding the main house price, restoration work, facility construction, building confirmation work, roof construction, cargo reception at the port, transportation from the port, and expenses related to building confirmation. For more details, please inquire.
Overseas Relocation Price: 28,420,000 yen
※The following is an estimated cost up to January 2024 for the Bay Area on the West Coast of the United States. The cost includes only the expenses for lumber, excluding the main house price, restoration work, facility construction, building confirmation work, roof construction, cargo reception at the port, transportation from the port, and expenses related to building confirmation. For more details, please inquire.
Living with care and for a long time in traditional old houses
Overseas relocation and SDGs

In Japan, the nationwide issue of vacant homes in rural areas has become increasingly serious, with approximately 9,700 vacant traditional houses, or “Kominka” in Kyoto Prefecture as of the year 2022. However, on the other hand, since around the year 2003, the total number of vacant Kominka has been decreasing nationwide.
The buying and selling of traditional houses, as well as their revitalization, are not carried out routinely, leading to the continuous demolition of these vacant houses. We believe that passing down culturally and historically valuable houses to the next generation holds social significance.
For those elderly individuals living in Kominka or those who have inherited such houses through succession, Kominka with uncertainties about utilization and marketability are often perceived as "negative legacies." Kominka preserved in good condition or those that can be made habitable through renovation can be sold to individuals interested in rural relocation with the support of specialists like us. However, in the case of severely deteriorated Kominka, even this may be challenging. Many such houses exist in the market.
However, when Kominka are relocated, they are dismantled and reassembled at the destination, making it possible to utilize even those houses that require extensive repairs and are difficult to sell as they are. We, as specialists in Kominka, are taking on the challenge of "relocation and overseas relocation" to pass down Kominka that would otherwise have been demolished to the next generation.
If you are interested, please do not hesitate to contact our company.
Services Other Than Traditional House Relocation
In addition to our Kominka overseas relocation business, our company is also engaged in the following services.We have traditional Japanese craftsmen who specialize in revitalizing aging traditional houses. Custom renovations tailored to your preferences are also possible.
We sell Kominka in Japan for use as vacation homes or for relocation purposes.
For those who purchase a Kominka in Japan for use as a vacation home, we manage it as an income property while it is not in use, operating it as a guesthouse, among other options.
We operate a resort villa with an annual membership system, located at the famous tourist spot "Amanohashidate" in Kyoto. It is a facility where a whole floor can be rented out exclusively for accommodation.




